DTM3D, expert en relevés et plan 2D sur l’ensemble de la France
DTM3D réalise des plans 2D précis et exploitables pour accompagner les professionnels du bâtiment, de l’architecture et de l’ingénierie. Grâce aux relevés 3D par nuage de points et à nos équipements de dernière génération, nos équipes produisent des documents numériques fiables et conformes aux attentes des des différentes phase de projets : Conception, declaration, execution.

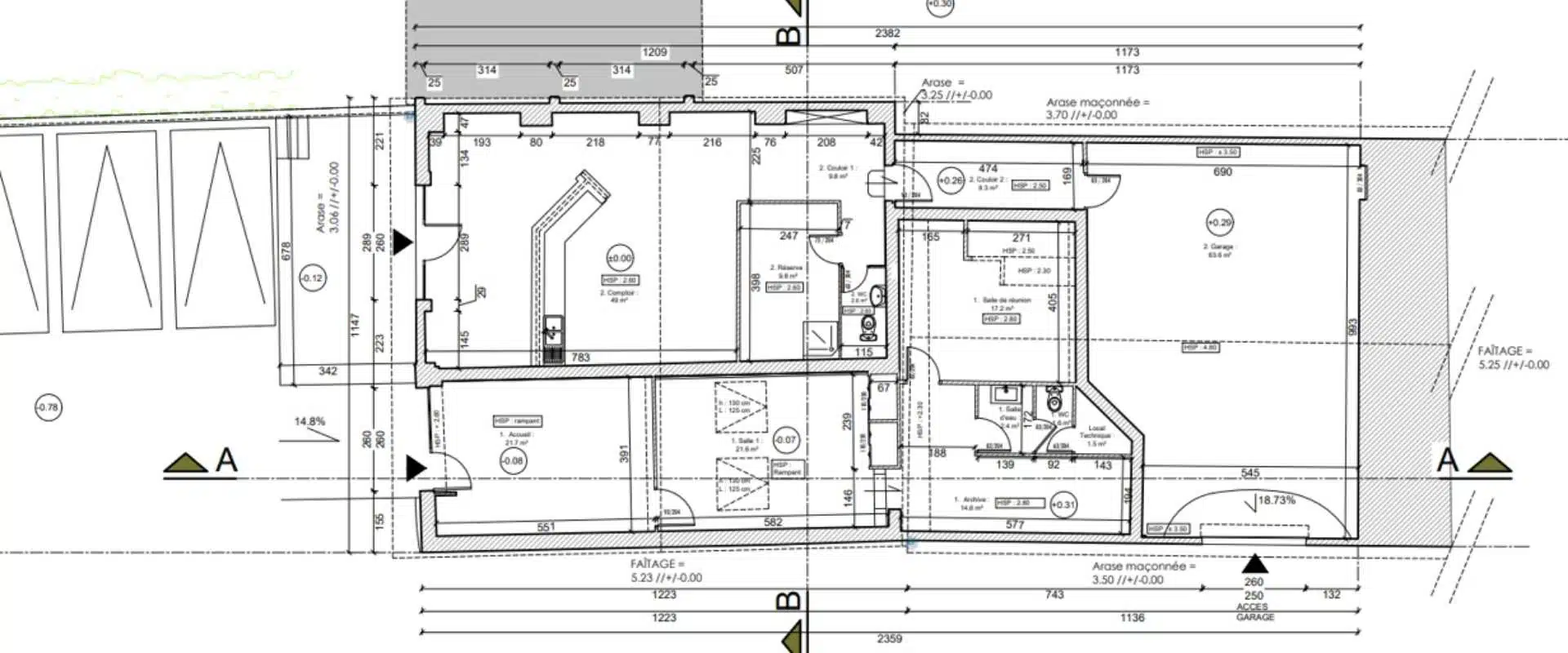
Ces plans 2D englobent les états des lieux, les façades, les coupes, les niveaux ou encore les toitures. Ils garantissent une représentation fidèle de l’existant et facilitent vos démarches administratives, vos études de conception ou le suivi de vos chantiers. Livrés aux formats DWG, DXF ou PDF, ils sont immédiatement exploitables par vos équipes et vos partenaires.
Les solutions en plan 2D proposées par DTM3D sur toute la France
Plan 2D précis et conformes aux normes professionnelles
Les prestations en plan 2D proposées par DTM3D répondent aux besoins des professionnels du bâtiment. Réalisés à partir de relevés précis issus du nuage de points, nos documents garantissent une fiabilité et une lisibilité optimales, qu’il s’agisse de plans d’état des lieux, de façades, de coupes techniques ou encore de plans de masse.
Chaque plan 2D est conçu pour accompagner toutes les étapes de vos projets : études préalables, demandes administratives, suivi de chantier ou gestion du patrimoine. En s’appuyant sur des données numériques détaillées et conformes aux attentes des architectes et bureaux d’études, DTM3D assure une représentation claire et directement exploitable, livrée dans des formats professionnels adaptés (DWG et PDF).
Pourquoi choisir DTM3D pour vos besoins en plan 2D sur toute la France ?
Un partenaire réactif et fiable
Notre équipe intervient rapidement dans toute la France et au-delà pour réaliser vos plans 2D. Nous assurons à la fois le relevé sur site, la production des documents et les échanges techniques avec vos interlocuteurs. Un interlocuteur unique suit le projet du relevé initial jusqu’à la livraison finale afin de simplifier vos démarches et de sécuriser les délais.
Choisir DTM3D pour vos plans 2D, c’est bénéficier d’un partenaire alliant expérience, technologie et proximité. Nos relevés réalisés à partir du nuage de points garantissent une restitution fidèle et détaillée, permettant de générer des documents parfaitement adaptés aux besoins des architectes, bureaux d’études, collectivités et entreprises du bâtiment.
Nous attachons une importance particulière à livrer des plans fiables, précis et conformes aux délais convenus. Grâce à cette rigueur, nous facilitons vos démarches administratives et techniques et contribuons à la réussite de vos projets dans toute la France.
DTM3D plans 2D clairs et directement exploitables sur l’ensemble de la France
Une lisibilité optimale pour faciliter vos démarches et vos chantiers
Nos plans 2D ne se limitent pas à une représentation technique. Leur clarté et leur lisibilité facilitent le travail quotidien des architectes, bureaux d’études, collectivités et entreprises du bâtiment. Chaque document s’intègre facilement dans vos outils métiers et sert de support solide pour la conception, la validation et le suivi de vos projets.

Questions fréquentes
Une question sur la réalisation de vos plans 2D ? Retrouvez les réponses à vos interrogations sur l’extraction de plans techniques précis, tels que les coupes, les façades et les plans de masse à partir de nos relevés 3D. Cette section vous aide à comprendre comment nos dessins numériques garantissent une conformité parfaite avec la réalité du terrain.














